Discover and Live The Way of Christ in the Expansive Grace of God.
As we approach the 100 year anniversary of our church campus, we are excited to have the opportunity to complete the Master Plan of our campus with a new Fellowship Hall that will be for EVERYONE!
Currently we do not have a room large enough for church wide meals. When we have church wide meals some people eat in the Great Hall. Some people eat in the parlor, and some people eat outside which inhibits connection.
Our senior adult ministry has been using our parlor for their monthly lunches, but as they continue to grow that room is becoming too small for the number of people who attend their special events. Our largest worship service has been meeting in our basement since 2012. This last spring it was 80% full over 50% of the time. It is not strategic to have your largest worship service in a basement that is hard to find and hard to access.
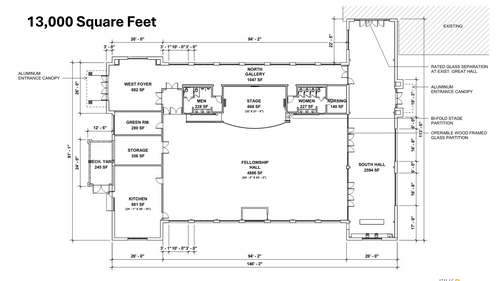
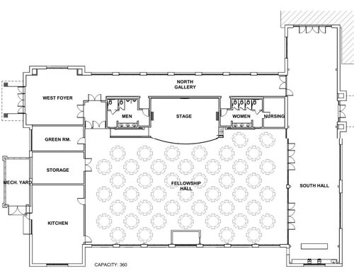
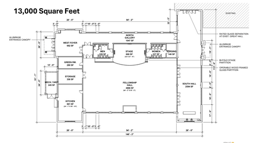
This new Fellowship Hall will be acoustically designed for weekly contemporary worship. It will have a full-size kitchen that can be used for church wide meals, wedding receptions, and special banquets for our ministry partners like Opportunity School, Amarillo Children’s Home, Young Life, Heal The City, Fellowship of Christian Athletes. This new Fellowship Hall will be for EVERYONE as we GATHER to connect to Christ and each other for the glory of God.
Hear The Story of our Master Plan and GOD’S Call to Build a New Fellowship Hall.
Get a Look at our Master Plan!














Walk With us in our New Fellowship Hall
F.A.Q.
Why do we need a new Fellowship Hall?
Who is going to use the new Fellowship Hall?
Didn’t we just renovate the Fellowship Center for contemporary worship?
We don’t have a room large enough to host church wide meals. We also need a larger, more accessible room to house our growing 1105 Contemporary Worship Service. Currently, our largest worship service is in a basement that is hard to find and challenging to access. This past spring the 1105 Service was over 80% full over 50% of the time. We need room to grow!
Rather than build a new Fellowship Hall to house our growing 1105 Contemporary Worship Service, why don’t we just have one blended worship service in the sanctuary at 11:00?
- By God’s grace, we saw average worship attendance increase by over 100 people each week when we launched 1105 in 2012. The first Sunday we hosted 1105 we had 350 people attend the service. It is clear from the remarkable growth of 1105 that many people prefer a purely contemporary worship service in a casual atmosphere over the blended worship that we used to offer every Sunday in the sanctuary prior to the launch of 1105.
- This past Easter we had 521 people come to worship at the 11:00 a.m. hour, which is more than our sanctuary can hold. The new Fellowship Hall will be able to hold even more people for worship than our sanctuary.
- Our beautiful sanctuary was not acoustically designed for contemporary worship, and the chancel is not large enough to house our organ console, choir, and entire 1105 band.
What is this new Fellowship Hall going to cost?
Currently the construction cost estimate is $9.5 million.
If the church is the people not the steeple, why spend money on bricks and mortar?
The Greek word translated as “church” in the New Testament is ekklhsia, which can be translated as “assembly” or “gathering.” We can see from Acts 2 that the people of God would GATHER regularly in homes and in the temple courts around the apostles’ teaching, for the breaking of bread, fellowship, and prayer. This new Fellowship Hall will provide a larger space where our entire congregation can encourage one another by gathering for worship, fellowship, and meals for the glory of God. Our campus, by God’s grace, is used every week by Opportunity School, Community Bible Study, and our own church members. The body of Christ needs a place to GATHER.
Everyone! We will eat there for churchwide meals on Memorial Day weekend, 4th of July, weekend, Labor Day weekend, and commitment Sunday. Our growing 1105 Contemporary Worship Service will take place there. Our growing NUFFs (No One Under Fifty-Five) ministry can have their monthly lunches in our new Fellowship Hall that is ground level and easy to access. Couples who want to have a large wedding reception on our campus can use it. Nonprofit Christian ministries that want to have their fundraising banquets there can use it as well. Our Kids Ministry can use it during VBS, and Kanakuk’s Kampout can use it in July as well.
What will happen to the Fellowship Center underneath the Sanctuary?
When we have special speakers, like Lee Strobel or Ed Stetzer, the Fellowship Center could be the perfect place for a combined Sunday school class. Any one of our large Sunday school classes like Berean Class Class or the Growing Class (young adults’ class) could move there as they continue to grow.
Is this the right time to build, and will we borrow money?
Rarely is there ever a perfect time to build. While inflation has been high, the S&P 500 has also reached record highs in the last few months. One of the major impetuses to hiring architects to begin the process of designing and building a new Fellowship Hall was a $500,000 estate gift from a longtime member who knew about the Master Plan of our campus. In 2025 we received another estate gift of $300,000, and another gift of $80,000 that have all been set aside to help fund this new Fellowship Hall that everyone can use. We have no plans to borrow from a bank. We would borrow from our own Church Endowment before borrowing from a bank.
Shouldn’t we invest our money in global missions and not another building for ourselves?
We will tithe on this capital campaign so an extra $950,000 will be raised to help our mission partners in Amarillo and around the world. 50% of this tithe will go towards global missions and 50% will go towards local needs in the Texas Panhandle.
Renovations took place in 2012, and the cost to renovate and soundproof the room was around $500,000. Since its inception, our 1105 Contemporary Worship Service has been our most attended worship service. Many young families have joined our church since launching 1105, and our overall giving has gone up over 33% with these new families.
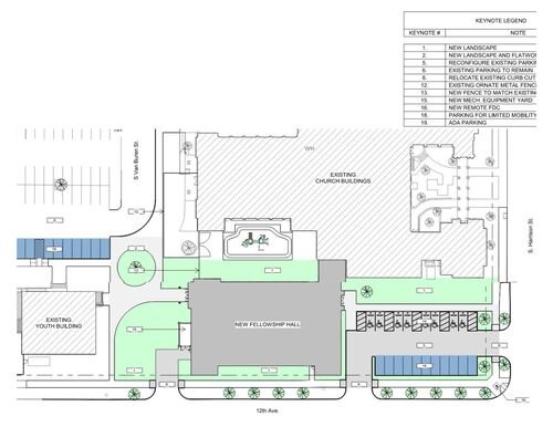
Won’t we lose valuable parking by building in the SW corner of our campus?
Thankfully with the upcoming renovations of the north block, paid for from a custodial account, we will have more paved parking than we have ever had before. We also own the vacant lot just west of our north block and can pave it in the future if needed.
What about those who need handicapped parking?
The southeast lot will continue to provide several handicap parking places, and our north lot will have handicap parking near the north entrance of our church. Fun fact: the walking distance from the south end of the north lot to the Sanctuary (across 11th street) is shorter than the walk from the south parking lot to the Sanctuary.
How long has this new Fellowship Hall been discussed?
In 2015 the Session created a Strategic Facilities Planning Team who interviewed every ministry in the church to determine their long-term facility needs. In 2018 the Session hired church architect Bill Merriman to help us design the Master Plan of our campus. Bill did a thorough job interviewing many of the ministries of our church. It was their conclusion that to help steward the growth of our 1105 Contemporary Worship Service, we should eventually extend the Great Hall and build a Fellowship Hall on the southwest corner of our main lot that is easy to access. Phase 1 of this Master Plan was the GROW campaign where we built a new A&O House and renovated the children’s wing. The building of a new Fellowship Hall is the final phase of our Master Plan. What a great way to celebrate 100 years of God’s faithfulness at the corner of 11th and Harrison by building a Fellowship Hall that completes the Master Plan of our campus to the glory of God.



